Používame cookies

Súbory cookie a ďalšie technológie sledovania používame na zlepšenie vášho zážitku z prehliadania našich webových stránok, na to, aby sme vám zobrazovali prispôsobený obsah a cielené reklamy, na analýzu návštevnosti našich webových stránok a na pochopenie toho, odkiaľ naši návštevníci prichádzajú. Viac info

Stavebný pozemok s projektom na apartmánový dom Mýto Nízke Tatry

Popis nehnuteľnosti

Zdieľať na Facebooku

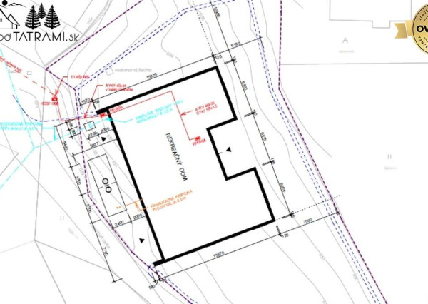
Pozemok je situovaný v srdci Slovenska, v dedinke pod Ďumbierom z Južnej strany Nízkych Tatier. Nachádza sa nad obcou Mýto pod Ďumbierom na hranici intravilánu. Je vzdialený od hlavnej cesty, v nadmorskej výške 635 m. Je svahovitý, slnečný, zvažujúci sa na Juh s výhľadom na Ďumbier a lyžiarske stredisko.

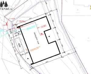
Terasovitý pozemok o výmere 1368 m2 je oplotený. Na hranici pozemku je elektrická prípojka, vodovodná prípojka je priamo na pozemku.
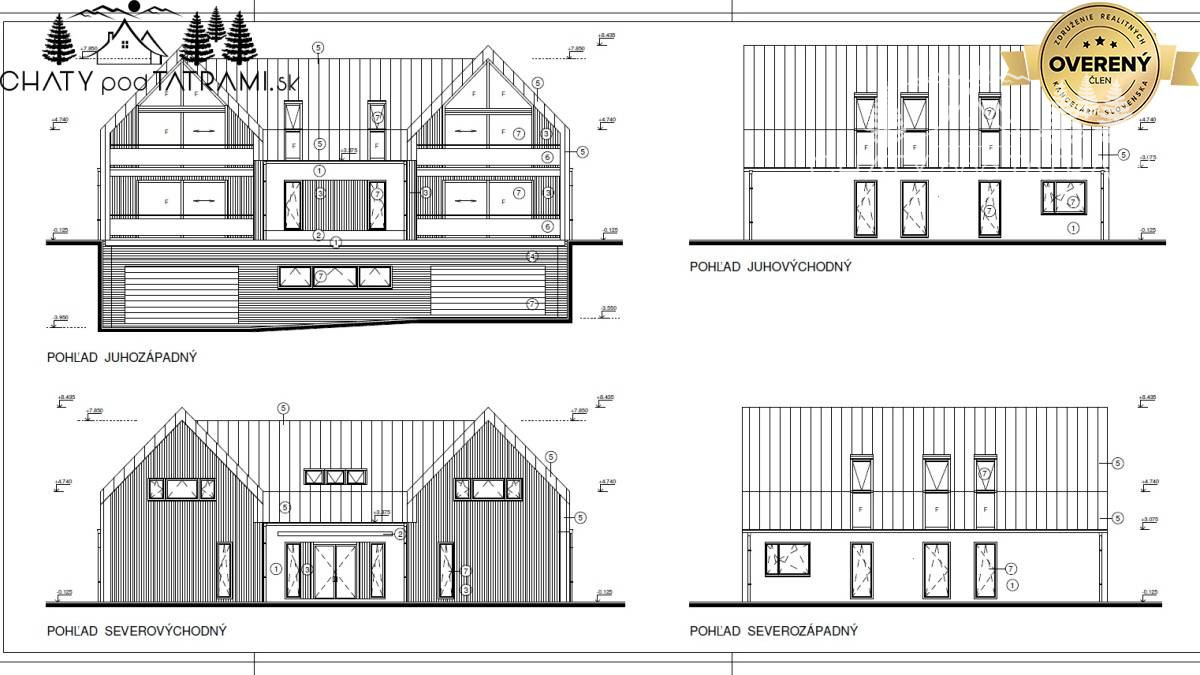
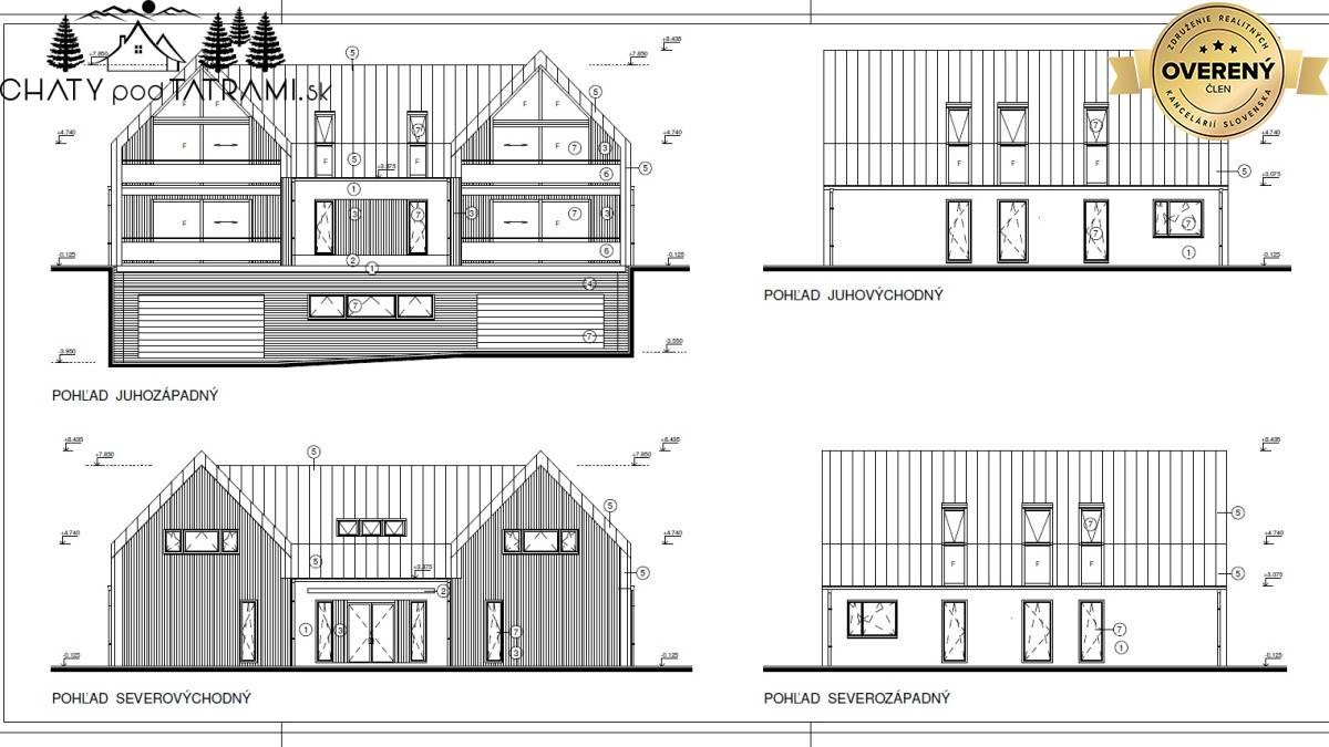
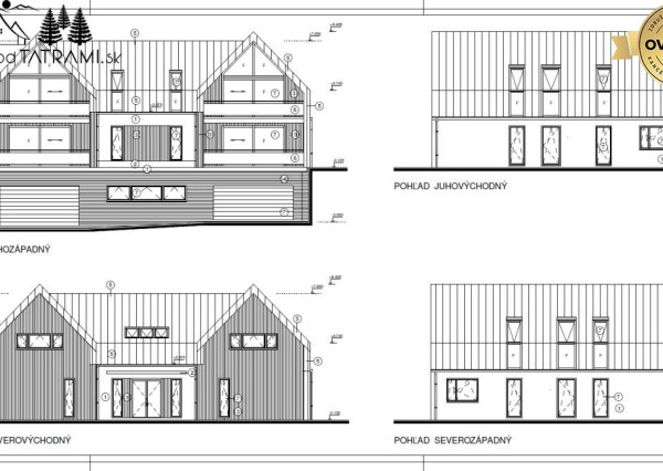
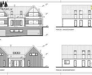
Na pozemok je spracovaný stavebný projekt na trojpodlažnú budovu. Sú tu naplánované štyri trojizbové byty a garáž pre štyri autá.

1,2 km vzdialený je obľúbený Ski&Bike park v Mýte pod Ďumbierom (kopeczabavy.sk)
4 km je vzdialené 18 jamkové majstrovské golfové ihrisko Gray Bear a 9 jamkové obojstranne hrateľné golfové ihrisko Little Bear s detskou golfovou akadémiou aj nočným golfom. V tomto areáli je taktiež lyžiarske stredisko s umelým zasnežovaním, večerným aj ranným fresh track lyžovaním a bežkárskou traťou (tale.sk)
9 km vzdialené je najväčšie lyžiarske stredisko na Slovensku, ktoré ponúka viac ako 50km upravených tratí na južnej a severnej strane Chopku a v lete sa meniace na perfektnú destináciu pre rodinné výlety s rôznymi atrakciami (jasna.sk).

Na všetky strediská pravidelne jazdí skibus so zástavkou cca400m od pozemku.

V lete je obľúbeným cieľom turistov aj neďaleká Bystrianska jaskyňa, Jaskyňa mŕtvych netopierov, zvieracia Ajax farma a množstvo trás pre turistov a cykloturistov, ktoré vedú v tesnej blízkosti pozemku (horehronie.sk).

Uvedená CENA je za m2.

Podrobné informácie a ďalšie ponuky nájdete na CHATYpodTATRAMI.sk a na našich sociálnych sieťach.

Vlastnosti

Status:
aktívne
Vlastníctvo:
neurčené
Plocha pozemku:
1368 m2
Inžinierske siete:
áno
Voda:
áno
Elektrika:
áno
Kanalizácia:
áno
Voda - na pozemku - vodný zdroj:
áno
Kanalizácia - na pozemku - žumpa:
áno
Internet:
áno
220 €/m2
Interné ID: 114
Ulica: Mýto pod Ďumbierom
Obec: Mýto pod Ďumbierom
Okres: Brezno
Kraj: Banskobystrický kraj
Druh: Pozemky
Typ: Predaj
Typ pozemku: Pozemok pre rodinné domy

Radi Vám poradíme